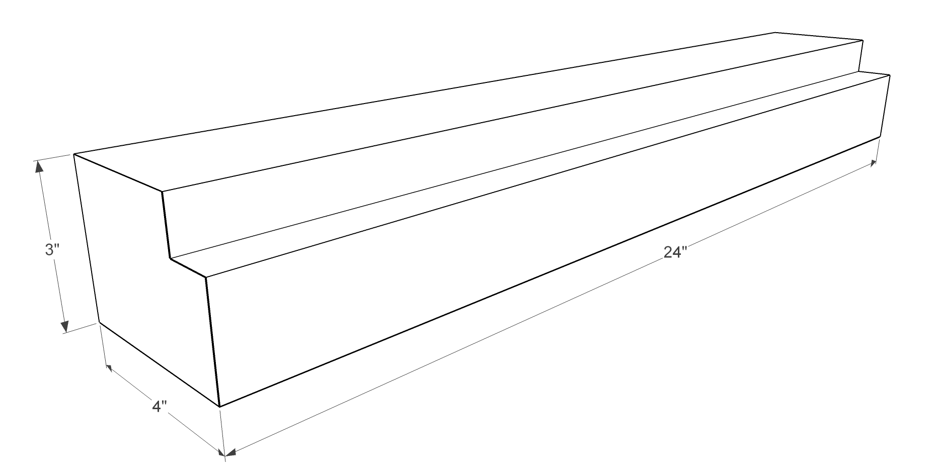
Trim TR57
X
Y
Z
4"
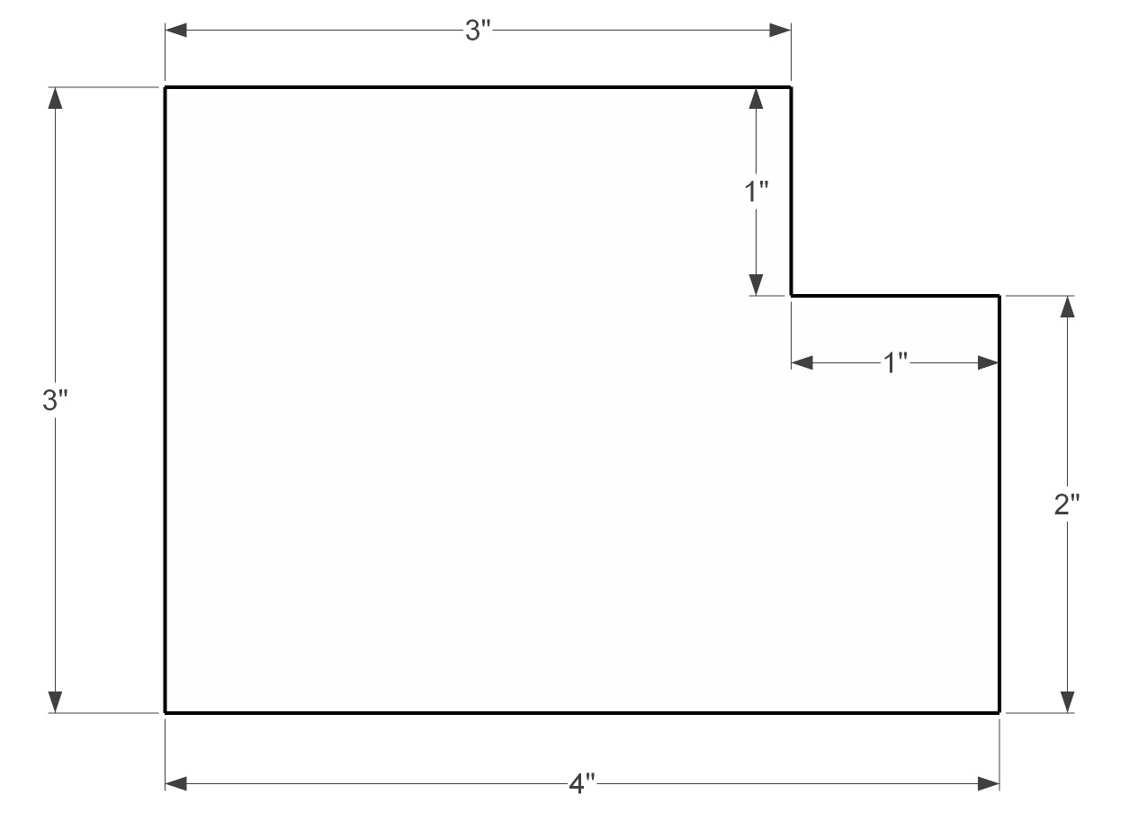
3"
24"
Rendering
Top View
Isometric View
Profile View
Home
Products
Balusters
Benches & Tables
Columns
Fireplaces
Trash Receptacles
Pier Caps
Planters
Sills
Specialty
Trims
Veneers
Wainscots
Wall Caps
Toggle navigation
Colors
Textures
Custom
Contact
Return to Trims