Mantel 10
X
Y
Z
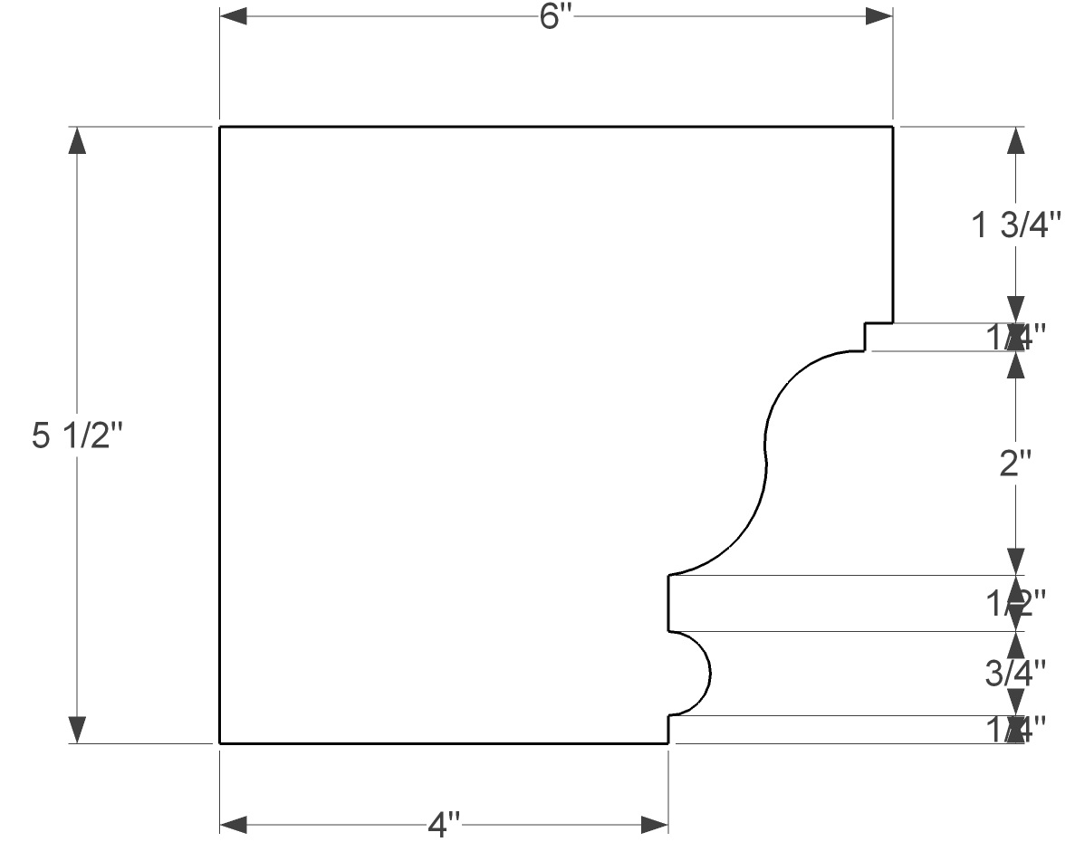
6"
5-1/2"
72"
Rendering
Top View
Isometric View
Profile View
Home
Products
Balusters
Benches & Tables
Columns
Fireplaces
Trash Receptacles
Pier Caps
Planters
Sills
Specialty
Trims
Veneers
Wainscots
Wall Caps
Toggle navigation
Colors
Textures
Custom
Contact
Return to Mantels